About this property
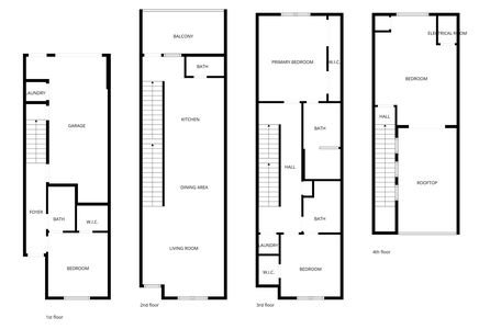
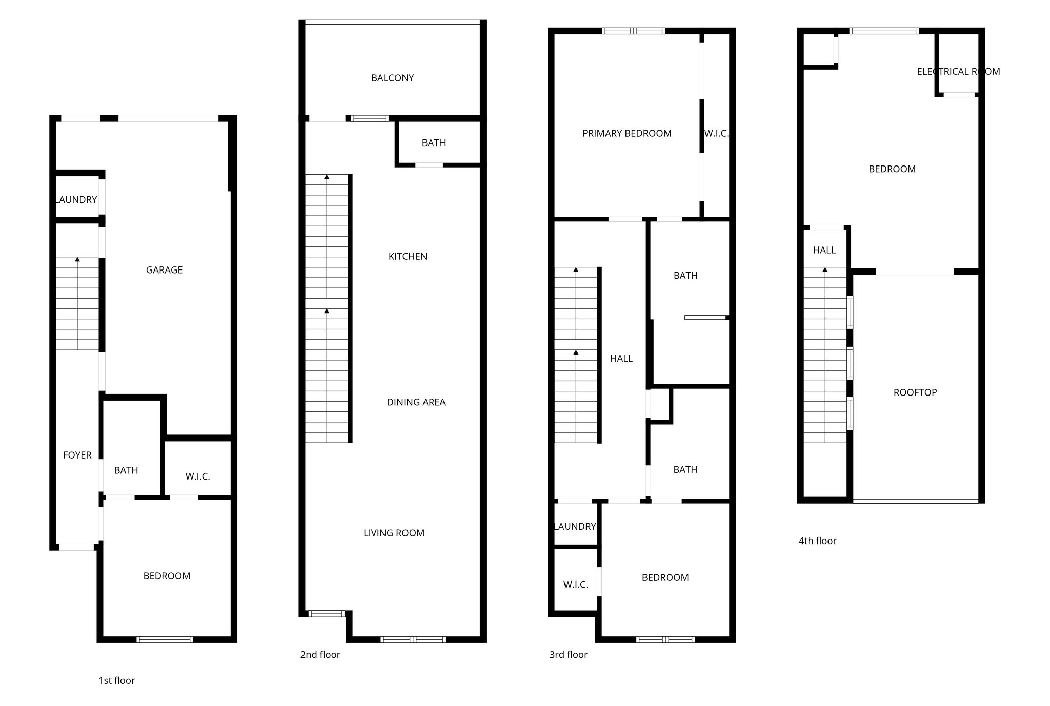
TWO fully furnished, income-producing short-term / AirBnb rentals in an unbeatable location—just steps from Hillsboro Village, Vanderbilt University, and Centennial Park. These thoughtfully designed four-bedroom townhomes feature a rooftop deck with stunning city views, a covered balcony, and an attached one-car garage, all curated to maximize guest experience and rental performance. High-end finishes elevate every space, including hardwood floors throughout, a chef’s kitchen complete with gas range and striking quartz countertops, and designer lighting, furnishings, and accents from the recent renovation. Walk to Nashville’s top restaurants, boutiques, coffee shops, landmarks, and Vanderbilt's campus and stadium—all right outside your door. Zoned for short-term, mid-term, or long-term rentals, offering exceptional flexibility for investors. NOOSTR permit conveys with LLC purchase.
PROPERTY OVERVIEW
PRIME LOCATION
Interested in

Fill in your details and we will contact you to confirm a time.
We encourage you to take a few seconds to fill out your information so we can send you exclusive updates for this listing!
Share My QR |
|